


78 370 ₽/м²
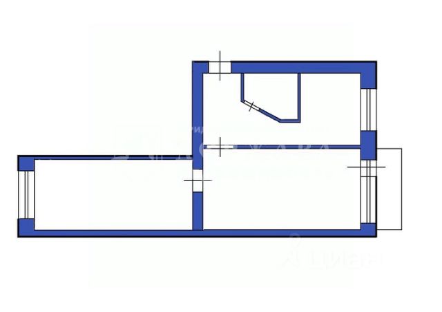
1 комн. Квартира Кемеровский район, п.Новостройка, ул. Больничная, д.2. 31,9 кв.м.-общая площадь, 16,5 кв.м жилая, 6,5 кв.м кухня. Светлая квартира с высокими потолками, совмещенный санузел. Квартира расположена на 2-ом этаже 3-х этажного кирпичного дома 2010 года постройки. У дома детская площадка и большая парковка. В шаговой доступности дет.сад, щкола, магазины, остановка общественного транспорта. В собственности более 5-ти лет. Приглашаем на просмотр в удобное для вас время (по предварительной договоренности). Звоните, пишите, смотрите и покупайте!!! Мы ждём вас! Продается квартира в ипотеку в Кемеровском районе Кемеровской области.

































































