211 515 ₽/м²
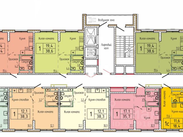
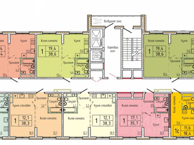
О КОМПЛЕКСЕ Микрорайон в горах "ШОРИЯ ГРАД" - крупный инвестпроект, расположенный в центре Шерегеша у подножья гор. Микрорайон в горах "ШОРИЯ ГРАД" - это свое жилье на курорте, входящем в "Топ 5" страны. Прекрасные образы заснеженных гор и первозданной природы в архитектуре. Микрорайон в горах "ШОРИЯ ГРАД" открывает новые возможности для жителей и гостей Шерегеша. В микрорайоне планируется возвести 19 жилых домов на 1750 квартир площадью более 85 000 кв.м. Площадь застройки участка 7,9 Га. ПРЕИМУЩЕСТВА Дома комфорт-класса; Статус - жилая недвижимость; 1, 2, 3-комнатные квартиры; Большой выбор планировочных решений; Подземный и наземный паркинг; Наличие кладовых; Помещения для хранения всесезонного снаряжения; Концепция "двор без машин"; Возможность покупки в ипотеку; Возможность сдачи квартиры в аренду через управляющую компанию; Ресепшн, лаунж-зона, кофе-бар; Детский сад, магазины "у дома", рестораны, аптеки и пр. БЛАГОУСТРОЙСТВО Во дворах будут обустроены зоны отдыха, детские площадки, пространства для занятий спортом на открытом воздухе. Два детских сада на территории. Тщательно продуманы прогулочные маршруты по зеленым скверам, благоустроенным парковым дорожкам. Ландшафтное озеленение сделает уникальным каждый двор и даст возможность насладиться атмосферой горного массива в жилом комплексе "ШОРИЯ-ГРАД". ИНФРАСТРУКТУРА В наличии все ресурсы для занятия спортом, творчеством и любимом делом. Продуманная до мелочей инфраструктура создает особую среду и атмосферу для современной семьи, где размеренность и спокойствие сочетаются с неограниченными возможностями для обучения и развития. Здесь предусмотрены все необходимые объекты детские сады, школа, магазины, кафе, парковки, отделения банков и пр. Является дочерним обществом ООО "СДС-Строй"















































































