


190 000 ₽/м²
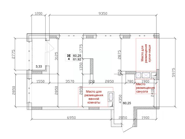
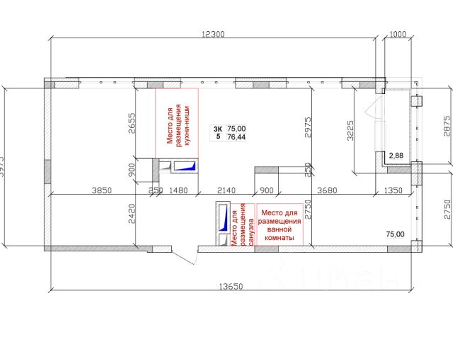
Продажа квартир напрямую от застройщика в ЖК "7 Высот" Сопровождаем сделку на всех этапах, с минимальным пакетом документов, одобрим ипотеку любого банка бесплатно. Посети наш отдел продаж и получи уникальное предложение! До конца месяца действуют специальные условия: Юбилейная скидка - 5% на все квартиры (цена в объявлении указана с учетом скидки) кладовые от 100 000 ₽/м² (с отделкой, металлической дверью и стеллажом) рассрочка на кладовые в готовых домах СУБСИДИРОВАННАЯ ИПОТЕКА ДЛЯ ВСЕХ 13,9% НА ВЕСЬ СРОК! СЕМЕЙНАЯ ИПОТЕКА 3,5 % НА ВЕСЬ СРОК Подробности по каждому предложению расскажем лично и подберем оптимальный вариант под ваш бюджет. ЖК "7 Высот" — это современный жилой комплекс комфорт-класса в Кемерово, где всё продумано для жизни: от удобных планировок до благоустроенной территории. Здесь сочетаются комфорт, функциональность и спокойная городская среда — без лишнего шума и суеты. Доступные варианты отделки: квартиры без отделки готовые решения с отделкой и КУХНЕЙ!: WHITEBOX / СЕМЕЙНАЯ / КОМФОРТ Выбираете формат под себя - от базового до полностью готового. СТОИМОСТЬ РЕМОНТА И КУХНИ МОЖНО ВКЛЮЧИТЬ В ИПОТЕКУ! Рядом с домом: — школы и детские сады — магазины и супермаркеты — остановки транспорта — спортивные клубы и площадки — удобная транспортная развязка О застройщике: ООО СЗ "Ключ-42" соблюдаем сроки строительства работаем по банковской гарантии ПАО "Сбербанк" лауреат премии "Надёжный застройщик России 2025" Звоните или пишите подберем квартиру под ваш бюджет и задачу Сохраните объявление, чтобы не потерять актуальные предложения



























































































