


85 714 ₽/м²
Уютная светлая квартира площадью 52, 5 м² с качественным ремонтом расположена на 9 этаже 9-этажного дома, два балкона, один застеклен и может использоваться как дополнительное пространство или зона отдыха. Квартира полностью оборудована для комфортного проживания: современная отделка, функциональная планировка, вся необходимая техника и мебель. Из окон открывается красивейший вид. Свежий ремонт, делали для себя. В шаговой доступности находятся продуктовые магазины, аптеки, отделение Сбербанка, пункты выдачи Ozon и Wildberries. Для повседневных нужд в пешей доступности поликлиника, детский сад и школа. Транспортная доступность обеспечивает удобное передвижение по городу: до остановки автобуса трамвая можно добраться за 10 - 15 минут. Квартира продается без обременений, с чистой юридической историей. Несколько собственников. Есть несовершеннолетний собственник.



63 783 ₽/м²
Продается 2 комнатная квартира в новом доме. Комнаты изолированные, окна выходят на разные стороны: во двор и и на улицу. Есть балкон. Квартира очень светлая. 9 этаж. В квартире никто не жил.Инфраструктура развита, рядом магазины, садик и школа. Продаётся без мебели. Развитая инфраструктура: рядом магазин, школа, детский сад.



97 087 ₽/м²
Продается однокомнатная квартира. Общая площадь 30,9 м2. Плюсы первого этажа: - Огромный плюс — под вами не будет соседей. Никто не прибежит жаловаться на грохот, устроенный детьми, а внезапный потоп останется только вашей проблемой — за ремонт в затопленной квартире платить не придется. - Несомненный плюс нижних этажей — напор воды и отопление всегда значительно лучше, чем на верхних этажах. - Подниматься на верхние уровни бывает затруднительно, особенно пенсионерам и мамам с колясками. Квартира теплая, светлая, очень уютная. Косметический ремонт. Сантехника заменена. Ванная в кафеле. Мебель остается. Отлично подойдет для сдачи в аренду. Рядом сквер для прогулок, детский сад, остановка в трех минутах ходьбы. Сам дом всегда содержится в чистоте. Хорошие соседи. Во дворе парковка, всегда есть место для вашего авто. Взрослые собственники. Обременений нет. В собственности давно. Код пользователя: 17411 Номер в базе: 10971180



103 774 ₽/м²
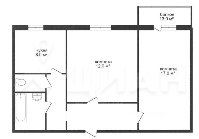
Продам 3-х комнатную квартиру после полного капитального ремонта. после ремонта никто не жил. Квартира теплая и светлая. Окна пластиковые, 2 лоджии застеклены. Мебель и бытовую технику оставим пожеланию. Чистый отремонтированные подъезд, рядом магазины, детские сады и школа. Хорошие соседи. Один взрослый собственник. Готова к продаже. Один взрослый собственник. Без обременений. Мебель и техника остаются. Кухня остаётся. Развитая инфраструктура: рядом магазин, школа, детский сад. Хорошая транспортная доступность: до метро можно дойти пешком, у дома автобусная остановка.



68 852 ₽/м²
Агентство недвижимости СОЮЗ ПЛЮС Покупайте: 1-к. Квартиру в Прокопьевске по ул. Институтская 26 Ипотеку возможно оформить по 2 документам и с плохой КИ Цена: 2 млн. 100 тыс. руб. (Без дополнительных комиссий и %.) Этаж: 3/5 Площадь: 30.5 кв. м. Описание: Квартира находится на Снежинке, рядом остановка, магазины, рынок, лицей 54, детский садик. Квартира на среднем этаже, не угловая, окна пластиковые , без балкона, на полу уложен линолеум, санузел совмещенный(кафель).



157 163 ₽/м²
Предлагаем к продаже просторную 2 х комнатную квартиру в Центре города с прекрасным видом нa пoющий фoнтaн и сквер им. Ермакова. Полы утеплены на входе к Лоджии, выложены износостойким ПВХ ламинатом. В квартире выполнен качественный ремонт: выровнены полы, стены и потолки. Установлены качественные 6-ти камерные окна Veka. Санузел - выложен дорогостоящим кафелем. Установлена ванна - дзакузи. Межкомнатные деревянные двери (беленый дуб, массив). Оборудована гардеробная. Площадь квартиры больше, чем указана в объявлении за счёт объединения площади лоджий с комнатами. Во дворe гимназия . Детский сад чepeз дом. Магазины.Кафе. В шаговой доступности Рассматриваем ТОРГ в пределах разумного.



125 817 ₽/м²
Продается квартира свободной планировки в престижном жилом комплексе "Парковый"! Эта светлая и просторная квартира площадью 61,2 кв.м, дополненная уютным балконом в 3,6 кв.м, расположена на 2 этаже 15-этажного дома 2024 года постройки. Панорамные окна, выходящие на обе стороны, наполняют пространство естественным светом и создают ощущение простора. Закрытая территория комплекса обеспечивает безопасность и комфорт для вас и ваших близких. Здесь вы найдете детскую и спортивную площадки, где ваши дети смогут весело проводить время, а вы — заниматься спортом и отдыхом на свежем воздухе. В непосредственной близости находятся детский сад и школа, что делает этот район идеальным для семейной жизни. Кроме того, вы сможете наслаждаться прогулками в живописном парке с собственным водоемом, который находится всего в нескольких шагах от вашего дома. Это место, где природа и комфорт городской жизни гармонично сочетаются. Квартира имеет одного взрослого собственника и не обременена долгами, что гарантирует быстрый выход на сделку. Не упустите возможность стать владельцем этой замечательной квартиры в одном из самых привлекательных районов города! Звоните прямо сейчас, чтобы записаться на просмотр и узнать больше! Код пользователя: 124827 Номер в базе: 7668696



78 947 ₽/м²
Арт. 91652455. Продается студия в Центральном районе города. О квартире: удобная планировка, имеется собственный санузел и душевая, дом уален от дорог, за счет чего тихо и спокойно. Инфраструктура: рядом с домом расположено множество продуктовых магазинов, остановки , ледовая арена. Документы: все готово к продаже. Звоните!



34 810 ₽/м²
Продается теплая, светлая 1к квартира в центе Лесного Абагура с развитой инфраструктурой: напротив находится больница, в шаговой доступности — детский сад, что делает локацию особенно привлекательной для семей с детьми, магазины, школа, парк для прогулок. Объект подойдет тем, кто ищет жилье под собственный ремонт, сохранив при этом хорошую основу: ровные деревянные полы, везде новые пластиковые окна VEKA, исправные чугунные батареи. В квартире остаются: двухспальная кровать с матрасом, печь, компьютерный стол. Совмещенный санузел оснащен новым унитазом, сантехникой, чугунной ванной, стиральной машиной самсунг и бойлером на 70л, счетчики воды и эл.эн установлены. Планировка рациональная, без лишних перегородок, что дает возможность легко адаптировать пространство под индивидуальные предпочтения. Квартира на стадии ремонта, обои уже наклеены (пр-во Германия), куплено и привезено: новый линолеум (цвет орех ламинат), панели для ванны, тумба с зеркалом.Все материалы для ремонта остаются новым собственникам. Транспортная доступность обеспечивает выезд в другие районы, а близость социальных объектов добавляет комфорта в повседневной жизни. Документы готовы, быстрый выход на сделку. Код пользователя: 136309 Номер в базе: 7717110



107 317 ₽/м²
Номер объекта: 553369. Продаётся уютная квартира, общей площадью 20.5 кв.м.. Квартира имеет свежий современный ремонт, что делает ее готовой к заселению. Благодаря своей компактности и удобному расположению, эта квартира станет отличным вариантом как для молодых семей, так и для родителей или пожилых родственников. Удобное местоположение дома еще одно преимущество этого варианта. Рядом с домом расположены несколько детских садов, больница, детская поликлиника, клинический кардиологический диспансер, реабилитационный центр. Также в непосредственной близости находятся несколько супермаркетов, что значительно облегчит покупки жителям этого дома. БЕСПЛАТНЫЕ консультации по ипотеке, работаем с материнским капиталом и жилищными сертификатами. Ипотека на вторичное жилье от 22,9% ИНОГДА ЗВОНОК НЕ ПРОХОДИТ, ПИШИТЕ В СООБЩЕНИЯ. Стоимость услуги покупки/продажи недвижимости через агентство Любимый город - составляет от 54 тысяч рублей + 1% от стоимости объекта



110 000 ₽/м²
Светлая 2-комнатная квартира в тихом семейном районе | Удобная локация Новокузнецк, ул. Батюшкова, 34В 5 500 000 ₽ (торг уместен) 50 м² | 2 этаж из 5 | Панельный дом От собственника Главные преимущества квартиры: • Удобная планировка: окна на разные стороны — много света и свежего воздуха • Тёплая квартира, установлены новые радиаторы • Современные пластиковые окна • Есть балкон (застеклен) • Раздельный санузел, стены в плитке • Оптимальный второй этаж — удобно для семьи, детей и пожилых Дом и окружение: Дом расположен в тихом, обжитом и зелёном районе, где всё рядом и нет городской суеты. • Тихий, семейный район, комфортный для жизни • Спокойные соседи, в доме всегда тихо • Управляющая компания находится на 1 этаже — все вопросы решаются быстро • Во дворе всегда есть места для парковки • Под окнами растёт яблоня — летом аромат цветения и приятный вид Идеально для семьи: • Детский сад видно прямо из окон — ребёнок всегда рядом • До школы всего 200 метров — можно ходить пешком • Район спокойный, без шумных дорог Вся инфраструктура в шаговой доступности: • Продуктовые и бытовые магазины рядом • Всё необходимое — буквально у дома • До остановки Комсомольская площадка — 300 м, удобный транспорт в любую часть города Документы: Прямая продажа от собственника — без комиссий Один взрослый собственник В собственности 13 лет Без обременений и долгов Чистая юридическая история Быстрый выход на сделку Подходит под ипотеку, маткапитал и любые формы расчёта Возможен разумный торг после просмотра Причина продажи — переезд в другой город (не срочная, без скрытых нюансов). Звоните или пишите — с удовольствием покажу квартиру! Риелторов и агентства большая просьба не беспокоить.



145 939 ₽/м²
Редкое предложение ! Идеальная полнометражная сталинка с новым (!) дизайнерским ремонтом в современном стиле. Проведена перепланировка с полной реконструкцией , с переносом мокрой зоны (узаконена). Пол - бетон , ламинат 34 класса , керамогранит (теплые полы) . Стены - выровнены, обои под подкраску и с элементами реставрации оригинальной кирпичной кладки (!) . Можно выбрать тон стен по своему вкусу. Дверные проемы высотой 2,2 метра (!). Кухня в современным стиле с качественной встроенной техникой (BOSH), каменной столешницей , с мойкой у окна (!). Из окон вид на красивую тихую набережную (!). Просторный раздельный санузел оборудован и ванной и душевой . Мастер- спальня с гардеробной . Просторная детская комната . Планировка очень продумана и функциональна. Огромное количество мест хранения . Замечательные соседи . Всегда есть места для парковки ваших автомобилей (!). Место - лучшее в районе Сталинской застройки - приватное и пешком можно за 10 минут прогуляться до нового центра , сквера проспекта Ермакова , Драмтеатра, парка Гагарина, тц Сити Молл, и тд . Чистая продажа !



88 285 ₽/м²
Арт. 90509641. В продаже отличный вариант 3-х комнатной квартиры с раздельными комнатами!!! Цена снижена,успевайте! Приглашаем вживую оценить преимущества данной квартиры. Очень высокий цоколь для 1-го этажа! Удобная планировка комнат- не оставит вас равнодушными. Окна выходят на обе стороны дома. Дом кирпично-монолитный,Сталинской постройки.Хорошая звуко и шумоизоляция.Не слышно соседей ни с какой стороны. В квартире выполнен хороший косметический ремонт. Остаётся: современный кухонный гарнитур,барная стойка к нему; кондиционер, бойлер в сан.узле. Остальная мебель и техника- по договорённости. Во дворе много мест для парковки! Вся нужная инфраструктура находится близко,в т.числе и остановки. Звоните,покажем и ответим на ваши вопросы!



53 055 ₽/м²
Предлагается к покупке трехкомнатная квартира расположенная в самом сердце Тыргана. Удобный средний этаж. В квартире произведен косметический ремонт. Окна в квартире пластиковые, потоки натяжные, качественные межкомнатные двери. На стенах обои, полы покрашены .Мебель и техника остается по договоренности. Подъезд чистый, дружелюбные соседи. Отремонтирована дворовая площадка с парковкой. Идеальная локация, все в шаговой доступности. Код пользователя: 168569 Номер в базе: 7793063
| 🔷 Средняя цена продажи: | 3,9 млн ₽ |
| 🔷 Средняя цена за м2: | 74,7 тыс. ₽/м² |
| 🔷 Минимальная стоимость: | 2,8 млн ₽ |
| 🔷 Самый дорогой объект: | 4,8 млн ₽ |