Мы используем куки-файлы. Соглашение об использовании

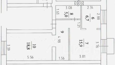
Продается 2-комн. квартира, 54,3 м²

Общая площадь54,3 м²
Жилая площадь35 м²
Площадь кухни9 м²
Этаж5 из 5
Год постройки1960
Квартира в стиле White-box готова к финишной отделке. Выполнена полная зачистка всей квартиры до кирпича и бетона + п/сухая стяжка 7 см на XPS-плитах + штукатурка 3 см по стенам и протяжка потолка + Сибит-100 перегородки + стояки отопления медь + санузел (гидроизоляция, вывод воды от стояков, разводка канализации) + электро-разводка в гофре по квартире. Продается без соседей сверху и с хорошей крышей (летом запланирован капитальный ремонт). Крытый балкон 1,7 м2 - в подарок. Один взрослый собственник. Прописанных лиц в квартире нет.
Позвоните автору
Вам ответят на все вопросы

О квартире

Тип жилья

Вторичка

Общая площадь

54,3 м²

Жилая площадь

35 м²

Площадь кухни

9 м²

Высота потолков

3,1 м

Санузел

1 совмещенный

Балкон/лоджия

1 балкон

Вид из окон

На улицу и двор

Ремонт

Косметический

Перепланировка

Была

О доме

Год постройки

1960

Тип дома

Монолитный

Тип перекрытий

Нет информации

Подъезды

5

Придомовая территория

Шлагбаум

Парковка

Наземная

Отопление

Центральное

Аварийность

Нет

Юридические особенности

Несовершеннолетние собственники

Нет

Материнский капитал при покупке

Не использовался

Спросите умного помощника
Получите экспертное мнение о жилье

Расположение

Ипотечный калькулятор
  • Базовая
  • Семейная
  • ИТ-ипотека
  • 20%
  • 30%
  • 40%
  • 50%
лет
  • 10 лет
  • 20 лет
  • 30 лет
Загружаем предложения от застройщика и банков
Помощь риелтора
Проверенный риелтор поможет купить или продать квартиру
СобственникID 16199148
  • Предоставил паспорт
6 850 000 ₽
Цена за метр
126 151 ₽/м²
Условия сделки
свободная продажа
Ипотека
возможна
СобственникID 16199148
  • Предоставил паспорт