Мы используем куки-файлы. Соглашение об использовании

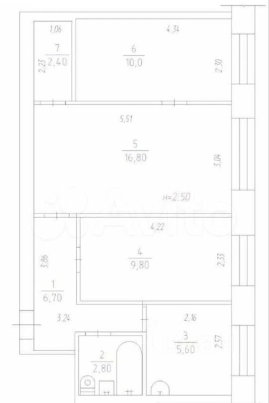
Продается 3-комн. квартира, 53,3 м²

Общая площадь53,3 м²
Площадь кухни6 м²
Этаж2 из 3
Год постройки2000
Продается уютная трехкомнатная квартира в кирпичном доме, построенном в 2000 году. Расположена на втором этаже трехэтажного здания. Общая площадь квартиры составляет 53,3 кв. м, из которых 6 кв. м занимает кухня. Окна выходят на улицу, что обеспечивает хорошее естественное освещение. В квартире сделан косметический ремонт, который позволит вам сразу заехать и жить в комфортных условиях. Кухня компактная, но функциональная, есть все необходимые коммуникации для установки техники. Санузел совмещенный, в хорошем состоянии. Просторные комнаты дадут возможность создать уютное пространство для всей семьи. Дом находится в тихом и спокойном районе, поэтому здесь всегда будет приятно возвращаться после рабочего дня. Во дворе обустроена наземная парковка для автомобилей жильцов. Дом ухожен, соседи дружелюбные и спокойные. В непосредственной близости от дома находятся школы и детские сады, что делает этот вариант идеальным для семей с детьми. Также рядом расположены клиники и магазины, поэтому все необходимое всегда будет под рукой. Хорошая транспортная доступность позволит вам быстро добраться до любой точки города. Продажа квартиры осуществляется от собственника, поэтому все юридические вопросы будут решены быстро и без лишних посредников. Квартира без обременений, возможна покупка в ипотеку. Приглашаем вас на просмотр, чтобы лично оценить все преимущества этой квартиры. Звоните и записывайтесь на удобное для вас время!
Позвоните автору
Вам ответят на все вопросы

О квартире

Тип жилья

Вторичка

Общая площадь

53,3 м²

Площадь кухни

6 м²

Санузел

1 совмещенный

Вид из окон

На улицу

Ремонт

Косметический

О доме

Год постройки

2000

Строительная серия

Индивидуальный проект

Тип дома

Кирпичный

Тип перекрытий

Деревянные

Подъезды

3

Парковка

Наземная

Отопление

Центральное

Аварийность

Нет

Спросите умного помощника
Получите экспертное мнение о жилье

Расположение

Ипотечный калькулятор
  • Базовая
  • Семейная
  • ИТ-ипотека
  • 20%
  • 30%
  • 40%
  • 50%
лет
  • 10 лет
  • 20 лет
  • 30 лет
Загружаем предложения от застройщика и банков
Помощь риелтора
Проверенный риелтор поможет купить или продать квартиру
СобственникID 26700505
    2 500 000 ₽
    Цена за метр
    46 904 ₽/м²
    Условия сделки
    свободная продажа
    Ипотека
    возможна
    СобственникID 26700505