Мы используем куки-файлы. Соглашение об использовании

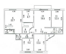
Продается 5-комн. квартира, 110 м²

Общая площадь110 м²
Жилая площадь76 м²
Площадь кухни9 м²
Этаж6 из 13
Год постройки1997
5-ти комн. кв. ул. Свободы, 6, 109,9 кв.м.-общая площадь, 75,9 кв.м.-жилая площадь, 8,7 кв.м.-кухня, 6-ой 13-ти эт. панельного дома. Просторная квартира для большой и дружной семьи, в которой три изолированные детские комнаты, спальня с просторной гардеробной комнатой, гостиная с выходом на балкон, кухня с хорошим кухонным гарнитуром, совмещенный санузел (хороший кафель) с разделением в нем зоны ванной и туалета. Установлены хорошие стеклопакеты, застекленный балкон, ремонт делали для себя и не смотря на то, что ему более 5-ти лет, всё в отличном состоянии. В подарок покупателю- хороший кухонный гарнитур, также обсуждается вопрос по мебели и технике. Рядом с домом банки, остановка, супермаркеты, во дворе детская площадка и удобная парковка для вашего авто. Для вашего удобства кроме фото квартиры, представлены планировка и экспликация нашей квартиры. Рассмотрим продажу квартиры как за наличный расчет, так и по ипотеке. При необходимости поможем Вам оформить ипотеку при покупке данной квартиры. 2 взрослых собственника (муж и жена). Квартира не в залоге, обременений нет, чистая продажа. Приглашаем на просмотр квартиры в удобное для Вас время.
Позвоните автору
Вам ответят на все вопросы

О квартире

Тип жилья

Вторичка

Общая площадь

110 м²

Жилая площадь

76 м²

Площадь кухни

9 м²

Санузел

1 совмещенный

Балкон/лоджия

1 балкон

Ремонт

Косметический

О доме

Год постройки

1997

Количество лифтов

1 пассажирский

Тип перекрытий

Железобетонные

Подъезды

5

О подъезде

Есть мусоропровод

Отопление

Центральное

Аварийность

Нет

Спросите умного помощника
Получите экспертное мнение о жилье

Расположение

Ипотечный калькулятор
  • Базовая
  • Семейная
  • ИТ-ипотека
  • 20%
  • 30%
  • 40%
  • 50%
лет
  • 10 лет
  • 20 лет
  • 30 лет
Загружаем предложения от застройщика и банков
Помощь риелтора
Проверенный риелтор поможет купить или продать квартиру
Агентство недвижимости
Суперагент
9 850 000 ₽
Цена за метр
89 545 ₽/м²
Условия сделки
свободная продажа
Ипотека
возможна
Агентство недвижимости
Суперагент
На Циан
8 лет
Объектов в работе
64