Мы используем куки-файлы. Соглашение об использовании
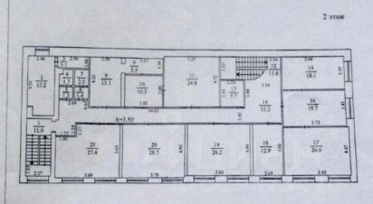
Площадь927 м²
Этажность2
Отчёт о привлекательности объектаУзнайте, насколько помещение и район подходят для вашего бизнеса
Что входит в отчёт
  • Охват населения
  • Пешеходный трафик
  • Автомобильный трафик
  • Средний бюджет семьи по району
  • Арендные ставки рядом
  • Точки притяжения
  • Конкуренты в радиусе 1 км
  • Рекомендации по выбору места для бизнеса
АКТИВ плюс - торговая и офисная недвижимость в аренду и на продажу. Все предложения от собственников, комиссии нет! Готовы предложить помещение под Ваш запрос, звоните! ПРОДАЖА! Здание с земельным участком. Г. Кемерово, Заводский район.: Общая площадь здания 928 ев.м - Этажность 2 ( 2 надземных этажа + подвал). Кабинетная планировка (возможна свободная планировка) - Материал стен кирпич - Материал перекрытий ж.ь. плиты Инженерные сети: - Электроснабжение 80 кВт. - Теплоснабжение центральное. - Водоснабжение центральное. - Канализация септик 15 куб.м. - Пожарная сигнализация и гидрантная система пожаротушения. - Система приточно-вытяжной вентиляции, кондиционеры. - Слаботочные сети: видеонаблюдение, сигнализация,,, Земельный участок 813 кв.м (собственность). Огорожен, благоустролен. Парковка перед зданием. Все помещения сданы в аренду. АКТИВ плюс - коммерческая недвижимость, готовый бизнес, инвестиции. Работаем для Вас с 2017 года!
lock

Войдите или зарегистрируйтесь
для просмотра информации

Просматривайте условия сделки и всю информацию об объекте
Сохраняйте фильтры в поиске и не вводите заново
Доступ к избранному с любого устройства
Неограниченное добавление в избранное
Позвоните автору
Вам ответят на все вопросы
Остались вопросы по объявлению?
Позвоните владельцу объявления и уточните необходимую информацию.
  • Инфраструктура
  • Похожие рядом
Приточная вентиляция
Местное кондиционирование
Центральное отопление
Гидрантная система пожаротушения
Помощь надёжных риелторов
Риелтор партнёр Циан поможет купить или продать любую недвижимость
20 000 000 ₽
267 255 $
228 504
Цена за метр
21 575 ₽
Налог
УСН
Агентство недвижимости
Суперагент
На Циан
7 лет
Объектов в работе
19