Мы используем куки-файлы. Соглашение об использовании
Помещение свободного назначения, 415 м²

Продается помещение свободного назначения, 415 м²

Площадь415 м²
Этаж1 из 11
Отчёт о привлекательности объектаУзнайте, насколько помещение и район подходят для вашего бизнеса
Что входит в отчёт
  • Охват населения
  • Пешеходный трафик
  • Автомобильный трафик
  • Средний бюджет семьи по району
  • Арендные ставки рядом
  • Точки притяжения
  • Конкуренты в радиусе 1 км
  • Рекомендации по выбору места для бизнеса
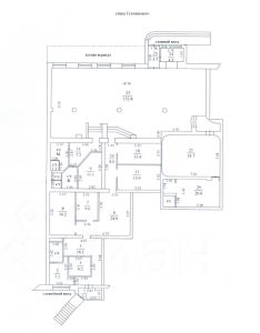
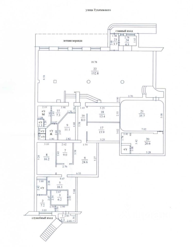
Предлагаем к продаже ПОМЕЩЕНИЕ под любой вид деятельности. Состояние помещения отличное. Площадь: 1 этаж - встроено-пристроенное помещение 375,5кв.м., + подвальное помещение 39,8кв.м. В настоящее время помещение полностью укомплектовано для полноценной работы ресторана (оборудование, мебель, кухонная утварь, посуда): 3 зала (основной с барным модулем, банкетный, ВИП), оформленные в современном русском стиле; гардероб, сан. узлы; кухня имеет все необходимые для технологического процесса помещения, оборудована немецким оборудованием фирмы Convotherm в отличном состоянии, которое на протяжении всего периода использования обслуживалось специализированным сервисным центром; низкотемпературная холодильная камера, склад сухих продуктов; помещение для персонала с отдельным сан. узлом, офисное помещение. летняя веранда. В подвальном помещении расположены вент. камера, распределительные шкафы электричества, хранение. В помещении установлено: автономная приточно-вытяжная вентиляция, кондиционирование, видеонаблюдение, охранно-пожарная сигнализация. Присоединение электричества от ТП, разрешенная эл. мощность 80 кВт. Централизованное отопление, водоснабжение. Служебный вход. Главный вход в помещение с улицы-дублёра одной из основных магистралей города. Большая бесплатная парковка для автомобилей у входа. Готовы обсудить подробности при личной встрече. Показ возможен в удобное время.
lock

Войдите или зарегистрируйтесь
для просмотра информации

Просматривайте условия сделки и всю информацию об объекте
Сохраняйте фильтры в поиске и не вводите заново
Доступ к избранному с любого устройства
Неограниченное добавление в избранное
Позвоните автору
Вам ответят на все вопросы
Остались вопросы по объявлению?
Позвоните владельцу объявления и уточните необходимую информацию.
  • Инфраструктура
  • Похожие рядом
  • Площадь участка0 га
  • Общая площадь415 м²
  • Статус участкаВ собственности
Приточная вентиляция
Местное кондиционирование
Центральное отопление
Сигнализация
Помощь надёжных риелторов
Риелтор партнёр Циан поможет купить или продать любую недвижимость
СобственникID 92124707
    65 000 000 ₽
    912 806 $
    787 455
    Цена за метр
    156 627 ₽
    Налог
    УСН
    СобственникID 92124707