Мы используем куки-файлы. Соглашение об использовании
Площадь1 060 м²
Этажность2
Отчёт о привлекательности объектаУзнайте, насколько помещение и район подходят для вашего бизнеса
Что входит в отчёт
  • Охват населения
  • Пешеходный трафик
  • Автомобильный трафик
  • Средний бюджет семьи по району
  • Арендные ставки рядом
  • Точки притяжения
  • Конкуренты в радиусе 1 км
  • Рекомендации по выбору места для бизнеса
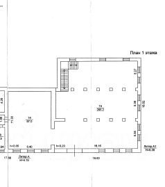
Продам производственную базу по адресу: ул. Грузовая 11, Заводского района города Кемерово. В составе имущественного комплекса здания ( производственно складское) 2х 3х этажное. 1 этаж 667 кв.м высота потолка 3,20 м. 3, 85 м., просторное помещение цехов. 2 этаж 235 кв.м высота потолка 2, 56 м. кабинетная система ( от 10 кв.м до 45 кв.м) Электричество 150 кВт (220 380 Вольт) Отопление центральное. Водоотведение центральное. Коммунальные 50 т.р ( примерно ). Показ по предварительной записи.
lock

Войдите или зарегистрируйтесь
для просмотра информации

Просматривайте условия сделки и всю информацию об объекте
Сохраняйте фильтры в поиске и не вводите заново
Доступ к избранному с любого устройства
Неограниченное добавление в избранное
Позвоните автору
Вам ответят на все вопросы
Остались вопросы по объявлению?
Позвоните владельцу объявления и уточните необходимую информацию.
  • Инфраструктура
  • Похожие рядом
Помощь надёжных риелторов
Риелтор партнёр Циан поможет купить или продать любую недвижимость
23 000 000 ₽
309 572 $
259 744
Цена за метр
21 699 ₽
Налог
УСН
Агентство недвижимости
Документы проверены