Мы используем куки-файлы. Соглашение об использовании
Площадь906 м²
Этаж1 из 1
ПомещениеСвободно
Отчёт о привлекательности объектаУзнайте, насколько помещение и район подходят для вашего бизнеса
Что входит в отчёт
  • Охват населения
  • Пешеходный трафик
  • Автомобильный трафик
  • Средний бюджет семьи по району
  • Арендные ставки рядом
  • Точки притяжения
  • Конкуренты в радиусе 1 км
  • Рекомендации по выбору места для бизнеса
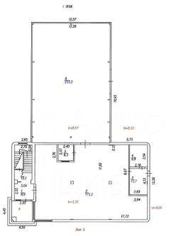
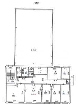
Продается отдельно стоящее капитальное здание общей площадью 906 кв. М., идеально подходящее под форматы: розничный магазин, оптовый склад, торговая база, сервисный центр или производство. Ключевые преимущества объекта: Удачное расположение: Здание расположено по адресу: Отдельная 9. Хорошая транспортная доступность для фур, рядом с трассой. Отдельно стоящее: Собственная территория, нет конфликтов с соседями, возможность организации парковки, удобного подъезда и погрузки/разгрузки. Рациональная планировка: Три этажа позволяют эффективно зонировать пространство. Например: 1-й этаж: под show-room, торговый зал, приемку/отгрузку товара. 2-й и 3-й этажи: под складские помещения, офисы, производственные цеха или комнаты отдыха для персонала. Готов к эксплуатации: Проведены все необходимые коммуникации: свет 1200, квт, отопление, водопровод, канализация, вентиляция, охранная сигнализация, видеонаблюдение. Развитая территория: Ухоженная прилегающая территория, огорожена забором, есть асфальтированная площадка для большегрузов и парковки клиентов. Отличная возможность для: Открытия или расширения розничного или оптового бизнеса. Организации логистического или складского комплекса. Размещения производственного предприятия или сервиса. Инвестиции с последующей сдачей в аренду нескольким арендаторам. Цена: 110000000 рублей. (Возможен торг для серьезных покупателей). Собственность: Частная. Земельный участок в собственности. Рассмотрим все варианты сотрудничества. На связи в любое время.
lock

Войдите или зарегистрируйтесь
для просмотра информации

Просматривайте условия сделки и всю информацию об объекте
Сохраняйте фильтры в поиске и не вводите заново
Доступ к избранному с любого устройства
Неограниченное добавление в избранное
Позвоните автору
Вам ответят на все вопросы
Остались вопросы по объявлению?
Позвоните владельцу объявления и уточните необходимую информацию.
  • Инфраструктура
  • Похожие рядом
  • Общая площадь906 м²
Помощь надёжных риелторов
Риелтор партнёр Циан поможет купить или продать любую недвижимость
Автор объявленияID 129564635
  • 1 год на Циане
  • 4 объявления
  • 80 000 000 ₽
    1 059 220 $
    906 181
    Цена за метр
    88 301 ₽
    Налог
    НДС включен: 14 426 229 ₽
    Автор объявленияID 129564635