Мы используем куки-файлы. Соглашение об использовании
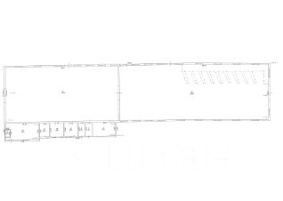
Площадь2 881,3 м²
Этажность1
Отчёт о привлекательности объектаУзнайте, насколько помещение и район подходят для вашего бизнеса
Что входит в отчёт
  • Охват населения
  • Пешеходный трафик
  • Автомобильный трафик
  • Средний бюджет семьи по району
  • Арендные ставки рядом
  • Точки притяжения
  • Конкуренты в радиусе 1 км
  • Рекомендации по выбору места для бизнеса
Продам отдельно стоящее здание площадью до 2881,3 м2. Центральное отопление, электроснабжение, охрана. Высота потолка 7,6м. Удобная локация (на въезде в город, рядом автостанция и железнодорожный вокзал). Отличные асфальтированные подъездные пути, большие гаражные ворота. Высокая транспортная доступность и автомобильный трафик. Подъезд круглый год для легкового и грузового автотранспорта. Возможное назначение: торговые, производственные или складские помещения, гаражные боксы, логистический центр и др. Предложение от собственника, цена ниже чем у посредника. Приглашаем на просмотр в удобное для Вас время. Готовы обсудить стоимость.
lock

Войдите или зарегистрируйтесь
для просмотра информации

Просматривайте условия сделки и всю информацию об объекте
Сохраняйте фильтры в поиске и не вводите заново
Доступ к избранному с любого устройства
Неограниченное добавление в избранное
Позвоните автору
Вам ответят на все вопросы
Остались вопросы по объявлению?
Позвоните владельцу объявления и уточните необходимую информацию.
  • Инфраструктура
  • Похожие рядом
Естественная вентиляция
Центральное отопление
Помощь надёжных риелторов
Риелтор партнёр Циан поможет купить или продать любую недвижимость
  • 5,0・2
  • Документы проверены
  • 8 лет 1 месяц на Циане
  • 24 объявления
  • 8 000 000 ₽
    104 920 $
    89 750
    Цена за метр
    2 777 ₽
    Налог
    НДС не включен
    РиелторСобственник недвижимости
    5,0・2
    Документы проверены