Мы используем куки-файлы. Соглашение об использовании
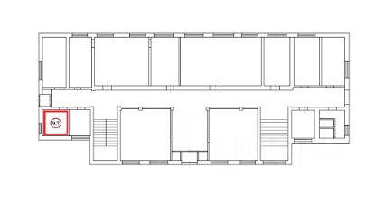
Площадь9,7 м²
Этаж1 из 4
Парковка12 мест
ПомещениеСвободно
Отчёт о привлекательности объектаУзнайте, насколько помещение и район подходят для вашего бизнеса
Что входит в отчёт
  • Охват населения
  • Пешеходный трафик
  • Автомобильный трафик
  • Средний бюджет семьи по району
  • Арендные ставки рядом
  • Точки притяжения
  • Конкуренты в радиусе 1 км
  • Рекомендации по выбору места для бизнеса
Долгосрочная аренда коммерческой недвижимости, объект в городе Кемерово. Реализация без комиссии агентства. Предлагаем приобрести в аренду помещение в офисном здании находящееся по адресу: РФ, Кемеровская область Кузбасс, город Кемерово, проспект Советский, дом 12. Общая площадь кабинета: 9,7 кв.м. на 1 этаже 4х этажного офисного здания. • Внутри помещения расположена собственная мокрая точка. • Здание находится на первой линии по Советскому проспекту, напротив ТЦ Я, магазина электроники Эльдорадо и спортивного магазина Спортмастер. Рядом с Россельхозбанк • Есть парковка перед зданием на проезжей части, а также за зданием напротив торгово развлекательного центра Байконур • Отличная транспортная развязка. Высокий трафик. • Высота потолков 3 метра. • Перед заездом арендатора берем на себя покраску помещения. • В стоимость входят все коммунальные платежи.
lock

Войдите или зарегистрируйтесь
для просмотра информации

Просматривайте условия сделки и всю информацию об объекте
Сохраняйте фильтры в поиске и не вводите заново
Доступ к избранному с любого устройства
Неограниченное добавление в избранное
Позвоните автору
Вам ответят на все вопросы
Остались вопросы по объявлению?
Позвоните владельцу объявления и уточните необходимую информацию.
  • Инфраструктура
  • Похожие рядом
Помощь надёжных риелторов
Риелтор партнёр Циан поможет купить или продать любую недвижимость
11 000 ₽/мес.

Прямая аренда (от года), минимальный срок аренды 11 месяцев, предоплата за 1 месяц

144 $/мес.
123 /мес.
Цена за метр
13 609 ₽ в год
Налог
НДС включен: 1 983 ₽
Комиссия
нет
Коммунальные платежи
включены
Эксплуатационные расходы
включены
Агентство недвижимости
Суперагент
На Циан
11 лет
Объектов в работе
63