Мы используем куки-файлы. Соглашение об использовании
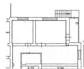
Площадь70 м²
Этаж1 из 16
Отчёт о привлекательности объектаУзнайте, насколько помещение и район подходят для вашего бизнеса
Что входит в отчёт
  • Охват населения
  • Пешеходный трафик
  • Автомобильный трафик
  • Средний бюджет семьи по району
  • Арендные ставки рядом
  • Точки притяжения
  • Конкуренты в радиусе 1 км
  • Рекомендации по выбору места для бизнеса
Нежилое помещение с отдельным входом! Центральный район, ул Соборная 12, 1 этаж, 70 кв.м. В помещении выполнен качественный ремонт, на полу керамогранит, стены - обои под покраску. Имеется возможность оборудования мокрой точки в одном из кабинетов! Удобное расположении в центре города, свободная автомобильная парковка, помещение с готовым ремонтом, состоит из трех просторных кабинетов, комнаты для персонала с кухонной зоной(кухонный гарнитур), также имеется небольшое место для хранения или склада. На текущий момент помещение занимает арендатор, который освободит арендуемое помещение до 31 декабря 2025 Очень важно! Под ПВЗ не сдаётся, пожалуйста не пишите и не спрашивайте почему, позиция окончательная
lock

Войдите или зарегистрируйтесь
для просмотра информации

Просматривайте условия сделки и всю информацию об объекте
Сохраняйте фильтры в поиске и не вводите заново
Доступ к избранному с любого устройства
Неограниченное добавление в избранное
Позвоните автору
Вам ответят на все вопросы
Остались вопросы по объявлению?
Позвоните владельцу объявления и уточните необходимую информацию.
  • Инфраструктура
  • Похожие рядом
  • Общая площадь70 м²
Приточная вентиляция
Местное кондиционирование
Центральное отопление
Помощь надёжных риелторов
Риелтор партнёр Циан поможет купить или продать любую недвижимость
Автор объявленияID 9767326
  • 10 лет 9 месяцев на Циане
  • 4 объявления
  • 84 000 ₽/мес.

    Прямая аренда (от года), минимальный срок аренды 11 месяцев, обеспечительный платёж 84000 ₽, предоплата за 1 месяц

    1 174 $/мес.
    983 /мес.
    Цена за метр
    14 400 ₽ в год
    Налог
    УСН
    Комиссия
    нет
    Коммунальные платежи
    не включены
    Эксплуатационные расходы
    не включены
    Автор объявленияID 9767326