Мы используем куки-файлы. Соглашение об использовании
Помещение свободного назначения, 300 м²

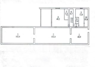
Сдается помещение свободного назначения, 300 м²

Площадь300 м²
Этаж-1 из 5
Отчёт о привлекательности объектаУзнайте, насколько помещение и район подходят для вашего бизнеса
Что входит в отчёт
  • Охват населения
  • Пешеходный трафик
  • Автомобильный трафик
  • Средний бюджет семьи по району
  • Арендные ставки рядом
  • Точки притяжения
  • Конкуренты в радиусе 1 км
  • Рекомендации по выбору места для бизнеса
- сдается в аренду нежилое помещение, в Центре Города - рядом с главным городским проспектом - Ленина, площадью (300 м2 - 350 м2), - первая линия, отдельный вход, три запасных выхода, развитая инфраструктура, хороший пешеходный и автомобильный трафик, - помещение свободного назначения, подходит под магазин, кафе, ресторан, салон красоты, офис, любую сферу услуг, - все центральные коммуникации, свет, вода, слив, помещение оборудовано собственной вытяжной вентиляцией - выведенной на крышу 5 этажного дома, приточной вентиляцией, пожарной сигнализацией, окна на 2 стороны дома, - имеется собственная автомойка, имеются складские помещения, большой теплый гараж - не входят в указанную площадь, дополнительную информацию можно будет узнать по телефону или при встрече.
lock

Войдите или зарегистрируйтесь
для просмотра информации

Просматривайте условия сделки и всю информацию об объекте
Сохраняйте фильтры в поиске и не вводите заново
Доступ к избранному с любого устройства
Неограниченное добавление в избранное
Позвоните автору
Вам ответят на все вопросы
Остались вопросы по объявлению?
Позвоните владельцу объявления и уточните необходимую информацию.
  • Инфраструктура
  • Похожие рядом
  • Общая площадь300 м²
Приточная вентиляция
Местное кондиционирование
Центральное отопление
Сигнализация
Помощь надёжных риелторов
Риелтор партнёр Циан поможет купить или продать любую недвижимость
Агентство недвижимости
Документы проверены
200 000 ₽/мес.

Прямая аренда (от года), предоплата за 1 месяц

2 809 $/мес.
2 423 /мес.
Цена за метр
8 000 ₽ в год
Налог
УСН
Комиссия
нет
Коммунальные платежи
не включены
Эксплуатационные расходы
не включены
Агентство недвижимости
Документы проверены
На Циан
8 лет
Объектов в работе
55