Мы используем куки-файлы. Соглашение об использовании
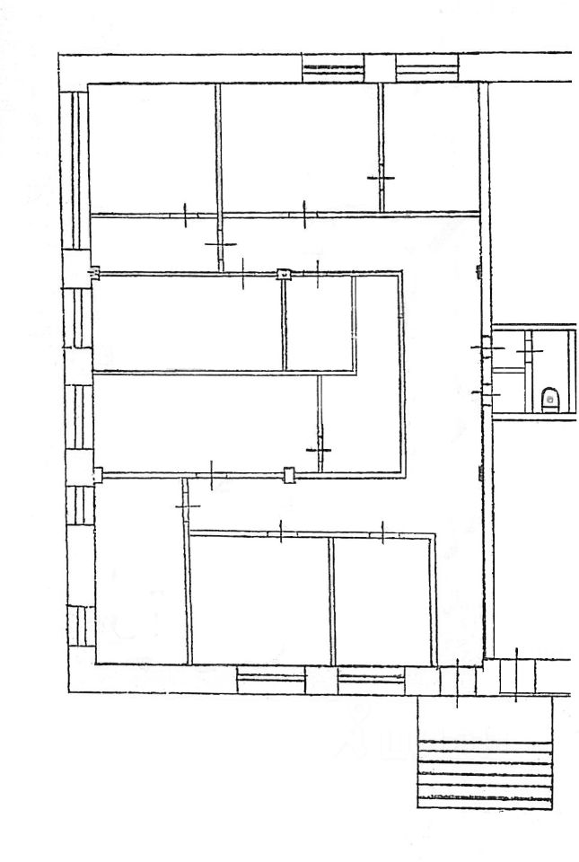
Помещение свободного назначения, 201,9 м²

Сдается помещение свободного назначения, 201,9 м²

Площадь201,9 м²
Этаж1 из 1
Отчёт о привлекательности объектаУзнайте, насколько помещение и район подходят для вашего бизнеса
Что входит в отчёт
  • Охват населения
  • Пешеходный трафик
  • Автомобильный трафик
  • Средний бюджет семьи по району
  • Арендные ставки рядом
  • Точки притяжения
  • Конкуренты в радиусе 1 км
  • Рекомендации по выбору места для бизнеса
Сдаётся в аренду нежилое помещение 201,9 кв.м в г.Калтан, пр. МИРА , 65а 1 этаж. Высота потолка: 2,9 м отдельный вход; удобный подъезд; большая парковка; централизованные коммуникации. близость остановки общественного транспорта; Мы предлагаем размещение наружной рекламы; удобную локацию; большой поток клиентов; свободную планировку (перегородки в помещении не являются несущими); срочное предложение от собственника (цена ниже, чем у посредников, гибкость в переговорах); возможность аренды части помещения. Перспективный объект по демократичной цене! Возможное Назначение РОЗНИЧНАЯ и ОПТОВАЯ ТОРГОВЛЯ, МЕДИЦИНСКАЯ КЛИНИКА, бытовые услуги, склад, спортзал и многое другое! Мы ждём наших партнёров, арендаторов на длительный срок. Приглашаем на просмотр в удобное для Вас время. Готовы обсудить стоимость аренды, условия, предоставление арендных каникул. ИНДИВИДУАЛЬНОЕ ЦЕНООБРАЗОВАНИЕ ПОД КАЖДОГО КЛИЕНТА! МЫ ГОТОВЫ ДАТЬ ВАМ ЛУЧШЕЕ ПРЕДЛОЖЕНИЕ!
lock

Войдите или зарегистрируйтесь
для просмотра информации

Просматривайте условия сделки и всю информацию об объекте
Сохраняйте фильтры в поиске и не вводите заново
Доступ к избранному с любого устройства
Неограниченное добавление в избранное
Позвоните автору
Вам ответят на все вопросы
Остались вопросы по объявлению?
Позвоните владельцу объявления и уточните необходимую информацию.
  • Инфраструктура
  • Похожие рядом
  • Общая площадь201,9 м²
Естественная вентиляция
Центральное отопление
Помощь надёжных риелторов
Риелтор партнёр Циан поможет купить или продать любую недвижимость
  • 5,0・2
  • Документы проверены
  • 8 лет 2 месяца на Циане
  • 28 объявлений
  • 50 475 ₽/мес.

    Прямая аренда (от года), минимальный срок аренды 6 месяцев, предоплата за 1 месяц

    690 $/мес.
    585 /мес.
    Цена за метр
    3 000 ₽ в год
    Налог
    УСН
    Комиссия
    нет
    Коммунальные платежи
    не включены
    Эксплуатационные расходы
    не включены
    РиелторСобственник недвижимости
    5,0・2
    Документы проверены