


159 016 ₽/м²
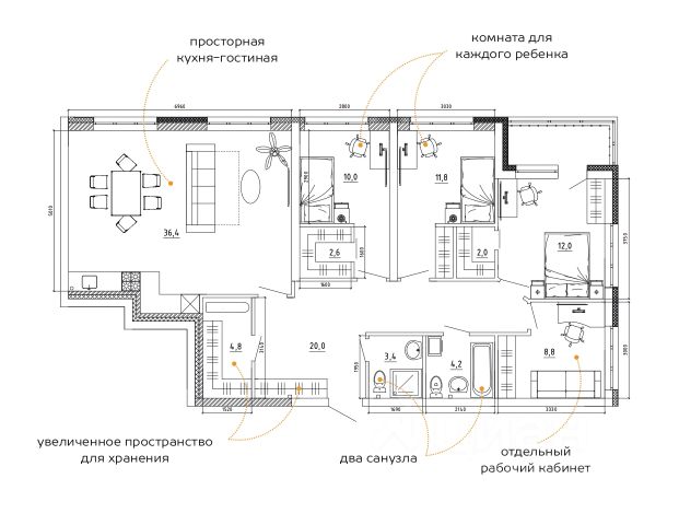
ДО КОНЦА АПРЕЛЯ ДЕЙСТВУЮТ АКЦИИ: СТАВКА 3,5% НА ВЕСЬ СРОК, РАССРОЧКА НА КВАРТИРЫ, ЦВЕТУЩЕЕ КОМБО - СКИДКА ДО 15% ПРИ ПОКУПКЕ КВАРТИРЫ ВМЕСТЕ С ПАРКОВКОЙ/КЛАДОВОЙ И ДРУГИЕ ПРЕДЛОЖЕНИЯ! Группа компаний "Атмосфера" объявляет о скором старте продаж в новом доме 3 в рамках масштабного проекта комфорт-класса "Уютный квартал". Это уникальный шанс забронировать квартиру по выгодным стартовым ценам. О проекте: ЖК "Уютный квартал" — первый проект комплексной застройки в формирующемся новом центре города, реализованный в концепции "город-сад". Жителей ждут благоустроенные общественные пространства, зоны для прогулок и отдыха, современная инфраструктура для семьи и детей. Особенности новой очереди (Дом 3): Архитектура: 5 секций переменной этажности (от 5 до 15 этажей). Квартиры: от 23,5 до 114,2 м². Отделка на выбор — под самоотделку, предчистовая отделка, "комфорт", "комфорт плюс". Эксклюзивные планировки: пентхаусы на последних этажах с потолками 3,5 м и застекленными террасами. Двор: закрытый внутренний двор без машин с современными детскими площадками. Комфорт: панорамные окна, премиальная отделка мест общего пользования (МОП). Инфраструктура для жителей: подземный паркинг с лифтом, кладовые помещения. Инфраструктура и благоустройство (для всего ЖК): Для отдыха: 2 фонтана, арт-объекты, подвесные гамаки, качели. Для спорта: всесезонный футбольный манеж, площадки для баскетбола и волейбола, воркаут-зоны, площадка для йоги, 3,5 км велодорожек. Для детей: игровые площадки разных возрастных категорий, зимняя горка, каток. Для прогулок: более 10 км пешеходных дорожек. Беседка для проведения праздников. Уже работает в первых очередях: Супермаркет, аптека, пиццерия, кофейня, детский центр. Фитнес-рум, комната для детских праздников. Подкаст-рум с функцией семейного кинотеатра, VR-рум Круглосуточная служба безопасности с более чем 1000 видеокамер. Преимущества локации: Детский сад на 300 мест. Современная школа с блоком школы искусств Спа центр Остановка трамвая в шаговой доступности. Способы покупки: • Ипотека от ведущих банков. • Военная ипотека. • Рассрочка. • Материнский капитал. • Государственные субсидии и сертификаты. Успейте стать частью "Уютного квартала" — пространства, где уют, комфорт и современная инфраструктура соединяются для вашей новой счастливой жизни!





























































































































