


124 500 ₽/м²
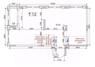
Квартира от застройщика в ЖК "7 ВЫСОТ" - это полное сопровождение сделки без риелторов, комиссии с минимумом документов. Квартиру можно приобрести БЕЗ ОТДЕЛКИ или выбрать один из трёх типовых вариантов отделки: WHITEBOX, ОПТИМАЛЬНАЯ или КОМФОРТ. УСПЕЙТЕ ПРИОБРЕСТИ КВАРТИРУ С ВЫГОДОЙ! Информация о ЖК: Рядом организован собственный парк с прогулочными аллеями, местами для отдыха, спортивными, детскими площадками. Этот парк станет излюбленным местом для утренних пробежек, занятий спортом, прогулок с колясками и отдыха для всех жителей квартала. Удобно: - Кладовые и колясочные - Высокоскоростные лифты - Развитая инфраструктура - школы, детские сады, супермаркеты в шаговой доступности - Удобная транспортная развязка Безопасно - Домовая территория под видеонаблюдением - Новейшая домофонная система - Современные инженерные системы Комфортно - Широкоформатные окна. - Высота потолков 2,9 м - Комфортные и функциональные планировки с правильной геометрией Просторные входные группы с уровня земли. Реализацией занимается собственный отдел продаж застройщика. Адрес: Кемерово, улица Веры Волошиной дом 40, 1 этаж.

































































































































