


120 000 ₽/м²
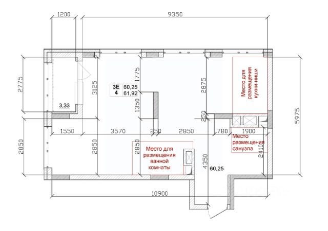
АКЦИИ МЕСЯЦА В ЖК СЕМЕЙНЫЙ КВАРТАЛ "ВЕСНА": РАССРОЧКА БЕЗ ПРОЦЕНТОВ И СКИДКА НА ПОКУПКУ КВАРТИР ДО 810 219 РУБ.! ! КВАРТИРЫ С ГОТОВОЙ НА 100% ОТДЕЛКОЙ "ПОД КЛЮЧ" ! ПРEИMУЩЕСTВА: Завершение строительства и получение ключей до конца Декабря 2025 года; Планировки от одной до четырех комнат; Дом построен по современной трехслойной панельной технологии, что обеспечивает высокую теплостойкость и комфортное проживание в любое время года; Высота потолков 2,6 метра; От 3-х до 4-х квартир на этаже; Лоджия в каждой квартире; Все жители комплекса будут избавлены от шума и грязи, т.к. все ремонтные работы будут уже завершены; О ЖК СЕМЕЙНЫЙ КВАРТАЛ "ВЕСНА": В непосредственной близости расположено 5 общеобразовательных ШКОЛ и 13 ДЕТСКИХ САДОВ; ЖИВИТЕ БЕЗ ПРОБОК! Транспортная доступность также на высоком уровне рядом с домом есть автобусные и трамвайные остановки, которые позволяют добраться до центра города всего за 20-30 минут и возможность добраться на трамвае без городских пробок в любое время; БЕЗОПАСНОСТЬ и КОМФОРТ жителей являются приоритетом комплекса, поэтому все необходимые меры будут предприняты для создания благоприятной среды для всех возрастных групп; Комплекс из 5 домов по 10 этажей, ВНУТРЕННИЙ ДВОР оборудован детскими площадками. Также планируется строительство детского сада на территории комплекса; ЗАБУДЬТЕ О ПОИСКЕ ПАРКОВОЧНОГО МЕСТА! Для удобства жителей предусмотрена большая открытая парковка на 350 машиномест; Данный комплекс обслуживает СОБСТВЕННАЯ УПРАВЛЯЮЩАЯ КОМПАНИЯ с многолетним опытом. Приобрести квартиру можно одним из способов: - Ипотека от 6%; - Обмен Вашей старой квартиры на новую; - Материнский капитал. НАПИШИТЕ, ЧТОБЫ ДОГОВОРИТЬСЯ О ПРОСМОТРЕ КВАРТИРЫ И ПОЛУЧИТЬ ПЕРСОНАЛЬНОЕ ПРЕДЛОЖЕНИЕ ПО ПОКУПКЕ С УЧЕТОМ АКЦИЙ! Адрес отдела продаж: г. Кемерово, ул. Веры Волошиной, 22а к1 Семейный квартал "Весна" расположен в самом сердце Южного микрорайона, между улицами им. Веры Волошиной, 1-я Линия и ул. Радищева ПИШИТЕ/ЗВОНИТЕ, МЫ ВСЕГДА НА СВЯЗИ И ГОТОВЫ ПРОКОНСУЛЬТИРОВАТЬ ПО ЛЮБОМУ ВОПРОСУ! macro-1199269



















































































































