76 923 ₽/м²
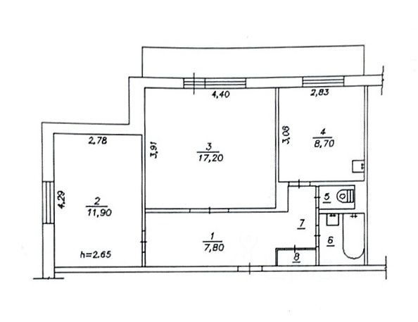
Продаётся уютная 2-комнатная квартира в Прокопьевске по адресу: проспект Ленина, 43. Общая площадь составляет 44,2 кв. м, кухня — 6 кв. м. Квартира расположена на первом этаже пятиэтажного панельного дома, построенного в 1973 году. квартира в хорошем состоянии,поэтому можно сразу въехать и жить с комфортом. окна выходят как на улицу, так и во двор, что обеспечивает хорошее естественное освещение. Дом находится в ухоженном состоянии, с наземной парковкой, поэтому всегда найдется место для вашего автомобиля. В районе есть все необходимое для комфортной жизни: рядом расположены гимназия ,детский сад, детская поликлиника, тц.чайка, и конечно место для прогулок "аллея героев " И бонусом идут шикарные соседи , даже подъездная дверь не скрипит раньше 9.00! Квартира продается от собственника, поэтому вы сможете избежать лишних комиссий и посредников. Приглашаем вас на просмотр, чтобы вы могли лично оценить все преимущества этой квартиры. Звоните и записывайтесь на удобное для вас время! возможен торг. Продам 2-комнатную квартиру в ипотеку в районе Рудничный в городе Прокопьевск.


















































































